広峰公民館
- 更新日:
- ID:3617
広峰公民館をご紹介します。

施設の概要
現公民館は平成5年に「広嶺公民館」として創立、平成11年に城北校区と別れ「広峰公民館」と改称されました。
全国祇園社(牛頭天王)の総本宮を祭る広峯神社のある広峰山を北側に望み、近くには自衛隊、大学、競馬場があり、約5,300戸をもつ広い地域にある公民館です。
学校との連携を密にし、何時も子どもの声が響き、地域の人々が気楽に立ち寄れ、いきがい、喜びを感じられる公民館を、皆に支えられながらつくることを心掛けています。
連絡先
〒670-0883
姫路市城北新町1丁目11-23
電話 079-288-0934
交通アクセス
JR姫路駅から 神姫バスで
- 姫路国立医療センタ-経由 大寿台 独協大学行き
自衛隊前下車 南へ徒歩10分 - 岡町経由 大寿台 独協大学行き
城北新町下車 徒歩3分
(付近の地図は下記をご参照ください。)
広峰公民館の地図はこちらをご参照ください。別ウィンドウで開く
各種講座のご案内
講座は、変更になる場合があります。
令和5年2月24日金曜日の「歴史講座」は講師先生の都合により延期されました。
公民館からのお知らせ
施設案内
広峰公民館の施設をご案内します。
概要
単独館、鉄筋コンクリート構造2階建
開館時間
午前9時から午後9時まで
休館日
月曜日および12月28日から翌年1月3日まで
会議室等の利用
公民館では講座等の主催事業以外で、地域の集会等で会議室等を使用できます。ただし、社会教育法23条規定の以下の利用はできません。
- 営利目的での利用
- 特定の政党の利害に関する利用
- 宗教活動を目的とした利用
使用料
- 午前は、午前9時00分から正午まで
- 午後は、午後1時00分から午後5時00分まで
- 夜間は、午後6時00分から午後9時00分まで
施設管理上、夜間の貸出ができない場合があります。予めご了承ください。
| 室名 | 午前 | 午後 | 夜間 |
|---|---|---|---|
| 第1研修室 | 300円 | 400円 | 300円 |
| 第2研修室 | 300円 | 400円 | 300円 |
| 第1会議室 | 600円 | 750円 | 600円 |
| 第2会議室 | 600円 | 750円 | 600円 |
| 料理実習室 | 800円 | 950円 | 800円 |
使用料の減免(姫路市立公民館使用料等に関する規則第2条)
- 市および公共団体が使用する場合:使用料の全額
- 地域の公共的団体が公益のため使用する場合:使用料の全額
- 市内の社会教育関係団体が社会教育のため使用:使用料の5割に相当する額
- 市長が特に必要と認める場合:市長が相当と認める額
利用申込受付期間
使用期日の属する月の前3月から使用期日の前日までの間
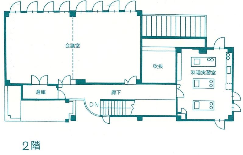
平面図
1階
- 第1研修室
- 第2研修室

2階
- 第1会議室
- 第2会議室
- 料理実習室

図は開館時のため、現在と相違する場合があります。
お問い合わせ
姫路市 市民局 市民参画部 市民活動推進課 公民館担当
住所: 〒670-8501 姫路市安田四丁目1番地 本庁舎4階別ウィンドウで開く
電話番号: 079-221-2783
ファクス番号: 079-221-2758

くらし・手続き
安全・安心
観光・文化・スポーツ
産業・経済・ビジネス
市政情報








